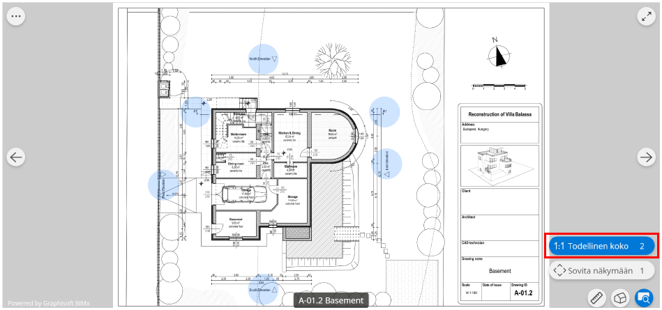
Todellinen koko
Näytä 2D-dokumentin todellinen mittakaava/koko
2D-dokumentissa:
- Napsauta Näkymät-pikavalikkoa (näytön oikeassa alakulmassa).
- Esiintulevista komennoista napsauta 1:1 (todellinen koko) -kuvaketta tai paina näppäintä 2 suurentamaan 2D-dokumentti 100 % mittakaavaan.
