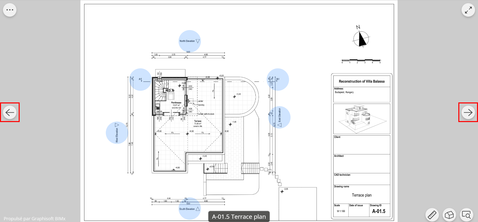
Navigation 2D
Utilisez ces commandes pour naviguer dans le document 2D
Recadrer
Bouton gauche de la souris + Glisser
Recadrage avec un doigt (sur écran tactile)
Recadrage avec le pavé tactile : cliquez et maintenez le bouton droit enfoncé, puis faites glisser
Zoom
Utilisez l'une des méthodes suivantes :
- Dérouler avec la molette
- Double clic
- Pincer (sur un écran tactile)
Ouvrir Document 2D suivant/précédent
- Utiliser les boutons flèche gauche/droite ou les touches flèche du clavier
- Faire glisser sur un écran tactile
Les vues sont ouvertes dans l'ordre qu'elles occupent dans l'Index.
