Mesure intelligente
Effectuez des mesures précises dans des vues 2D et 3D
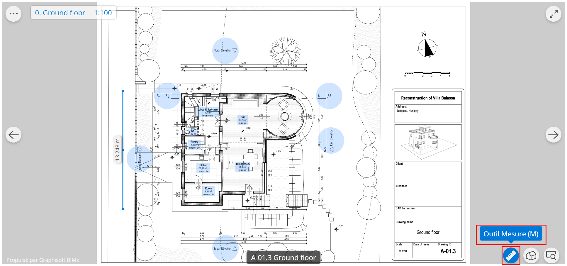
Utilisation de l'outil Mesure en 2D
Ouvrez n'importe quelle mise en page 2D de votre Hyper-modèle BIMx.

En appuyant sur l'icône de l'outil Mesure, le pointeur en forme de loupe apparaît
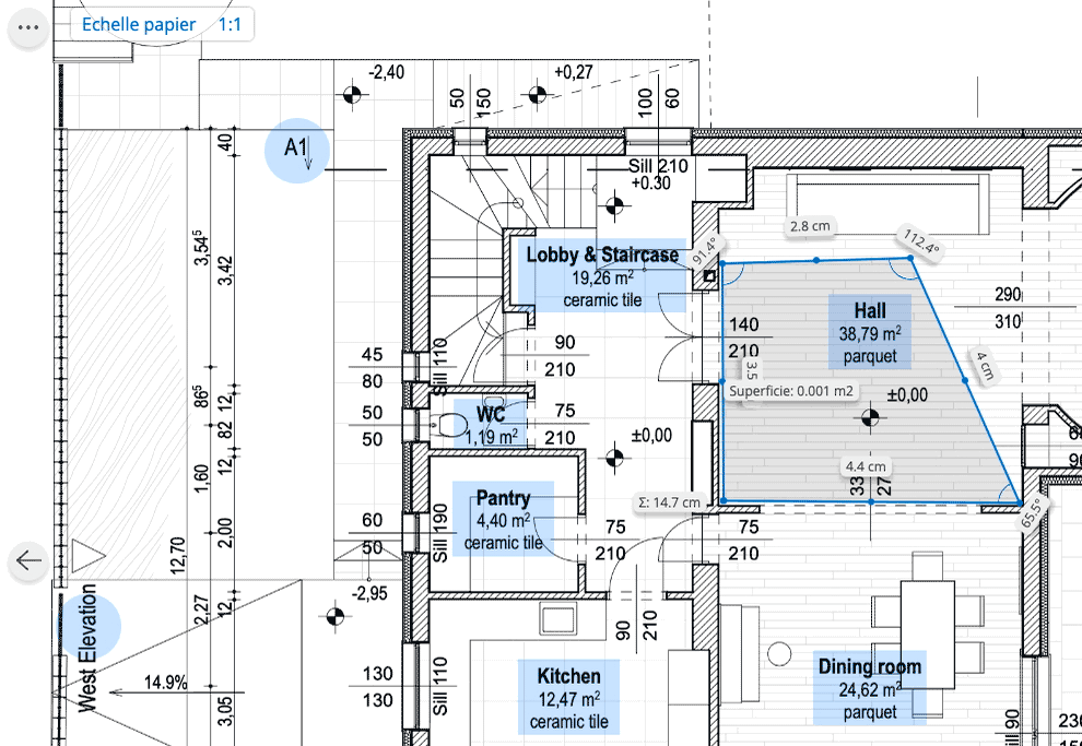
Il suffit d'aller à l'endroit à partir duquel vous voulez commencer la mesure et de cliquer. Répéter. Vous pouvez terminer la Chaîne en cliquant sur Esc, en cliquant avec le bouton droit de la souris ou en cliquant sur la coche.

Utilisez le pointeur si vous travaillez avec un appareil doté d'un écran tactile. Une fois sur le premier point, relâchez le pointeur puis faites-le glisser vers le deuxième point, et ainsi de suite.
Il se peut que vous souhaitiez mesurer uniquement la longueur d'un mur, ou mesurer une zone fermée. L'Outil sera en mesure de vous donner une zone dès que trois points seront placés. Mesures données :
- Longueur
- Angle
- Surface
De plus, l'outil vous donnera toujours en temps réel la "Longueur totale" des points que vous avez sélectionnés, en ajoutant la distance entre les points donnés.

Vous pouvez ajuster l'échelle en cliquant sur l'étiquette dans le coin supérieur gauche.

Cliquez sur l'un des "points d’attraction". Après le clic, le pointeur en forme de loupe s'affiche et vous pouvez mettre à jour la forme de la zone sélectionnée. Si vous souhaitez supprimer ce point spécifique, cliquez dessus et la mention "Supprimer" s'affichera à côté du point. Si le point que vous touchez se trouve à une extrémité de la ligne de mesure, vous disposez de deux options : "Supprimer" et "Ajouter un point" qui vous permet d’étendre la mesure avec un nouveau point.

Cliquer sur l'icône de l'outil Mesure désactive la mesure.
Utilisation de l'outil Mesure en 3D
Ouvrez n'importe quel modèle 3D de votre Hyper-modèle BIMx. L'outil Mesure fonctionne pratiquement de la même manière qu'en 2D, mais avec les différences suivantes :
- L'outil vous donnera toujours en temps réel la "Longueur totale" des points que vous avez sélectionnés, en ajoutant la distance entre les points donnés.
- L'outil Mesure en 3D vous offre des guides intelligents vous permettant d'effectuer des mesures précises. Les lignes guides perpendiculaires vous aident à obtenir des mesures verticales ou horizontales droites. Le cercle orange active tour à tour les surfaces verticales et horizontales pour vous aider à choisir le point de mesure approprié.


Changer d’unités
Si vous souhaitez passer des unités métriques aux unités anglo-saxonnes, ouvrez les Réglages et choisissez une unité dans la liste :

Passage d'une échelle à l'autre dans les mises en page
- Placez le premier point de mesure
- Le nom du dessin apparaît dans l'un des angles supérieurs. Cliquez sur le nom du dessin pour afficher la liste des échelles et des dessins de la mise en page.
- Sélectionnez l'échelle appropriée
