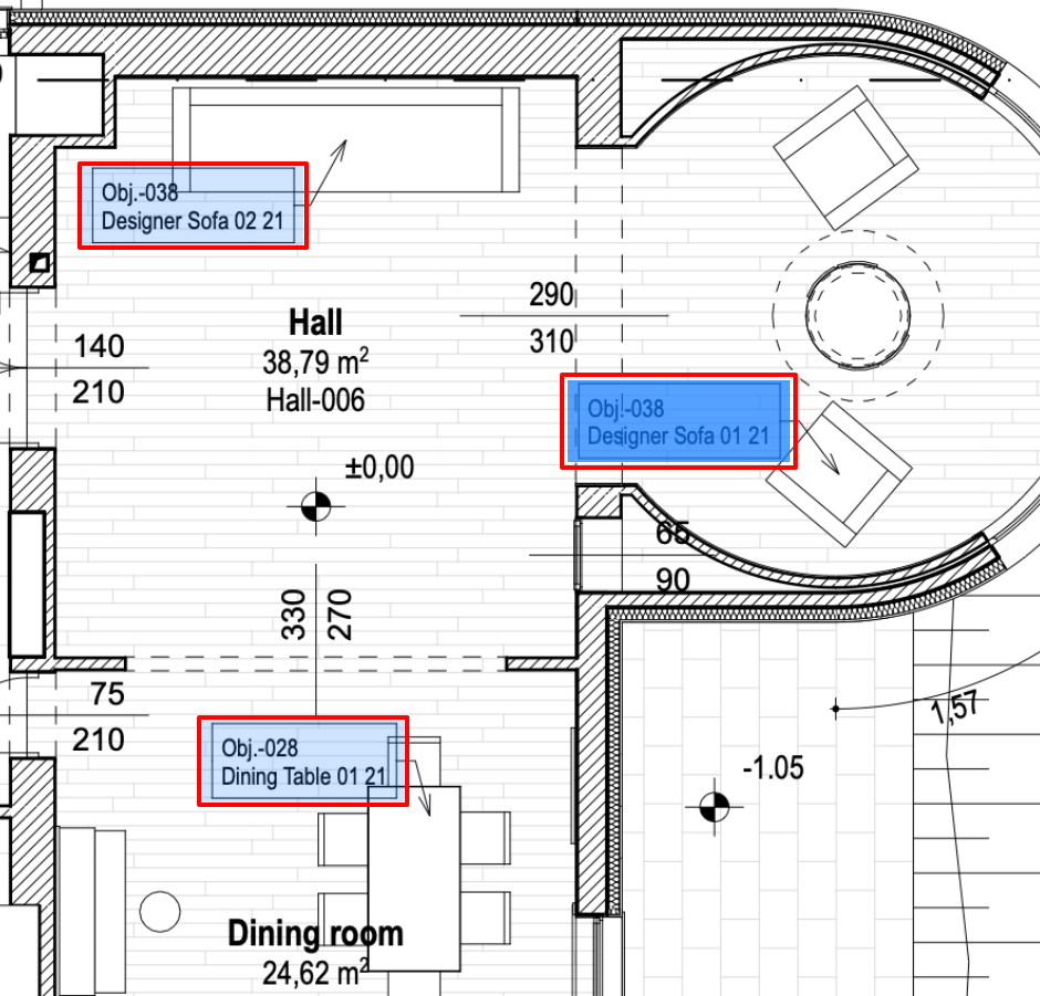
Interaktív elemcímkék a tervlapokon
Kattintson egy címkére a BIM-elemek adatainak eléréséhez a tervlapról
Elérhető az Archicad 27 vagy későbbi verziójában mentett BIMx Hipermodellekben.
Az elemre vonatkozó információk megtekintéséhez a BIMx egy tervlapján kattintson egy címkére (kék négyzetekkel kiemelve). (Interaktív négyzetek jelennek meg a címkével ellátott 3D modellelemeken.)


Az ikonra kattintva navigálhat a 3D modell megnyitásához és az elemre való ráközelítéshez.
Címkék megjelenítése és kikapcsolása
Az interaktív címkék be- vagy kikapcsolásához:
- Nyissa meg a menüt a képernyő bal felső széléről.
- Kattintson a Beállítások gombra.
- Állítsa át a Címkék kapcsolót, hogy láthatóvá tegye vagy kikapcsolja őket.

További részleteket lásd: