Misura intelligente
Eseguire misure precise nelle viste 2D e 3D
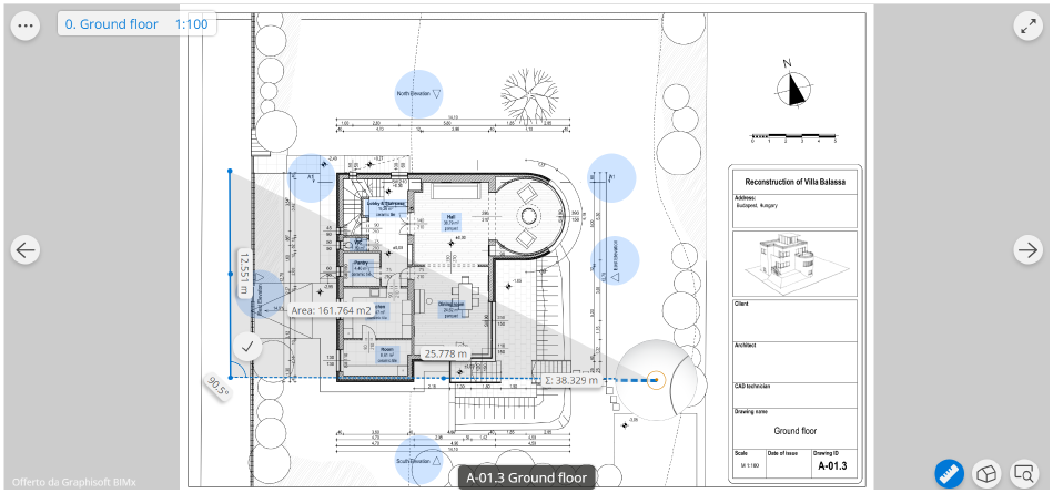
Utilizzo dello strumento Misura in 2D
Aprire qualsiasi layout 2D presente nell'Iper-Modello BIMx.

Premendo l'icona dello Strumento di misura, viene visualizzato il puntatore lente d'ingrandimento
È sufficiente andare a posizionarsi sul punto da cui si desidera iniziare la misura e fare clic. Ripetere. Per concludere la stringa si può fare clic su Esc, fare clic con il pulsante destro del mouse o fare clic sul segno di spunta.

Utilizzare il puntatore se si lavora con un dispositivo dotato di touchscreen. Una volta raggiunto il primo punto, rilasciare il puntatore e trascinarlo sul secondo punto, e così via.
È possibile sia misurare solo la lunghezza di un muro sia misurare un'area chiusa. Lo strumento è in grado di fornire la misura di un'area non appena vengono posizionati tre punti. Misure fornite:
- Lunghezza
- Angolo
- Area
Inoltre, lo strumento fornisce sempre una "Lunghezza totale" in tempo reale dei punti selezionati, sommando tra loro le distanze misurate tra i punti.

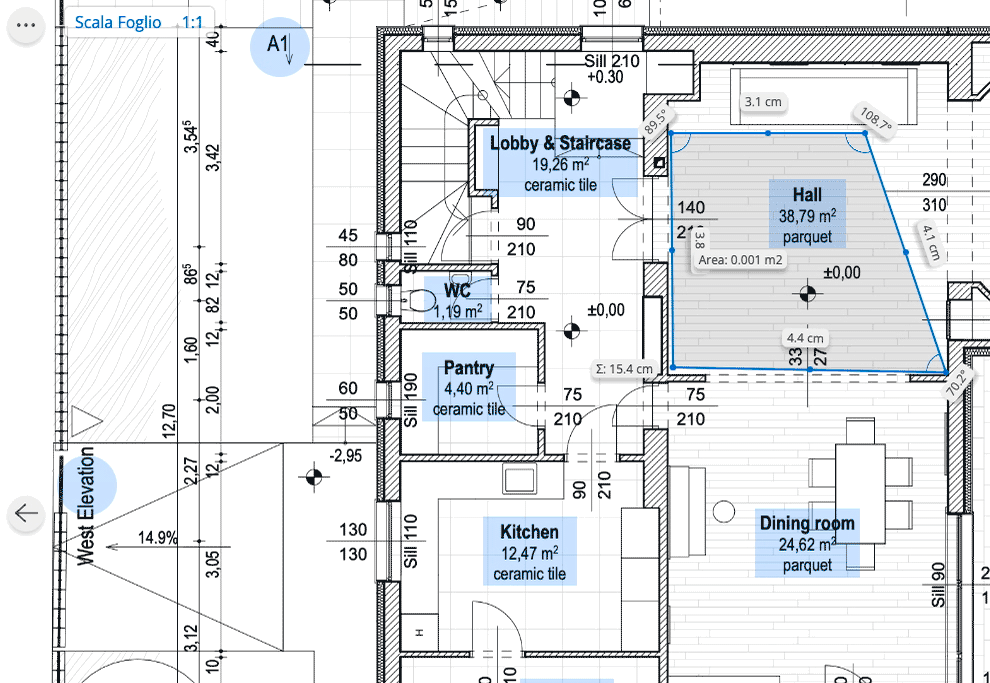
È possibile regolare la scala facendo clic sull'etichetta nell'angolo superiore sinistro.

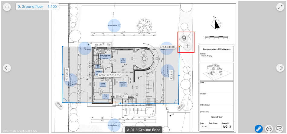
Fare clic su uno dei "punti di Snap". Una volta fatto clic, verrà visualizzato il puntatore lente d'ingrandimento e sarà possibile aggiornare la forma dell'area selezionata. Se si desidera eliminare questo punto specifico, fare clic su di esso e accanto al punto verrà visualizzata l'opzione "Cancella". Se il punto toccato si trova alla fine della linea di misura, oltre a "Cancella" viene visualizzata anche l'opzione "Aggiungi punto" per consentire di estendere la misura con un nuovo punto.

Facendo clic sull'icona dello strumento Misura si disattiva la misurazione.
Utilizzo dello strumento Misura in 3D
Aprire qualsiasi modello 3D presente nel proprio Iper-Modello BIMx. Lo strumento Misura funziona quasi come in 2D, ma con le seguenti differenze:
- Lo strumento fornisce sempre una "Lunghezza totale" in tempo reale dei punti selezionati, sommando tra loro le distanze misurate tra i punti.
- Lo strumento di misura in 3D offre ausili grafici intelligenti che consentono di effettuare misurazioni precise. Le linee guida perpendicolari aiutano a ottenere misure verticali o orizzontali diritte. Il cerchio arancione si orienta secondo le superfici verticali a quelle orizzontali per aiutare a scegliere il punto di misura giusto.


Cambiare le unità di misura
Per passare dalle unità metriche a quelle imperiali, aprire Impostazioni e scegliere un'unità dall'elenco:

Passaggio da una scala all'altra sui Layout
- Posizionare un primo punto di misurazione
- Il nome del disegno viene visualizzato in uno degli angoli superiori. Fare clic sul nome del disegno per visualizzare l'elenco delle scale e dei disegni nel layout.
- Selezionare la scala appropriata
