スマート計測
2Dおよび3Dビューで正確な計測を行います
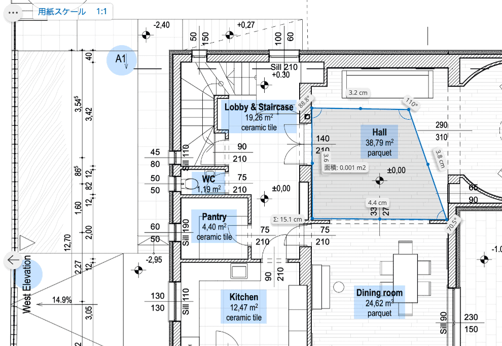
2Dで計測ツールを使用
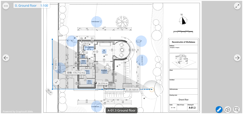
BIMx Hyper-modelにある2Dレイアウトを開きます。

計測ツールアイコンを押すと、ルーペのポインタが表示されます。
計測を開始したいポイントに移動してクリックするだけです。これを繰り返します。Escをクリックするか、右クリックするか、チェックマークをクリックすることで、一連の作業を終了できます。

タッチスクリーンを備えたデバイスで作業する場合は、ポインターを使用してください。1点目でポインターを離し、2点目までドラッグします。
壁の一辺の長さだけを計測したり、閉じた部分を計測このツールは、3つのポイントが配置されるとすぐに面積を出すことができます。得られる計測値:
- 長さ
- 角度
- 面積
また、このツールは常に、選択したポイントの各ポイント間の距離を足した「全長」をリアルタイムで表示します。

左上のラベルをクリックすると、スケールを調整することができます。

「スナップ点」を1つクリックします。クリックするとルーペのポインタが表示され、選択した部分の形状を更新することができます。この特定のポイントを削除する場合は、そのポイントをクリックすると、ポイントの横に「削除」が表示されます。タップした点が計測線の端にある場合、「削除」と「ポイントを追加」の2つのオプションが表示されるので、新しい点で計測を拡張することができます。

計測ツールのアイコンをクリックすると、計測が解除されます。
3Dで計測ツールを使用
BIMx Hyper-modelにある3Dモデルを開きます。計測ツールは2Dの場合とほぼ同じように動作しますが、以下の点が異なります:
- このツールは常に、選択したポイントの各ポイント間の距離を足した「全長」をリアルタイムで表示します。
- 3Dの計測ツールでは、スマートなガイドにより正確な計測が可能です。垂直のガイドラインは、垂直や水平をまっすぐに計測するのに役立ちます。オレンジの円は垂直の面と水平の面を反転します。これにより、正しい計測点を選ぶことができます。


単位を変更する
単位をメートルとインペリアルで切り替える場合は、[設定]を開いてリストから単位を選びます。

レイアウト上のスケールの切り替え
1つのレイアウトに複数の図面が含まれていて、場合によっては各図面のスケールが異なることもあります。計測ツールがスケールを正しく考慮しているかどうかを確認するために、以下を実行してください。
- 最初の計測点を配置します。
- 上部の一角に図面名が表示されます。図面名をクリックすると、レイアウト上のスケールと図面のリストが表示されます。
- 適切なスケールを選択します。
