스마트 측정
2D 및 3D 뷰에서 정밀한 측정을 수행합니다
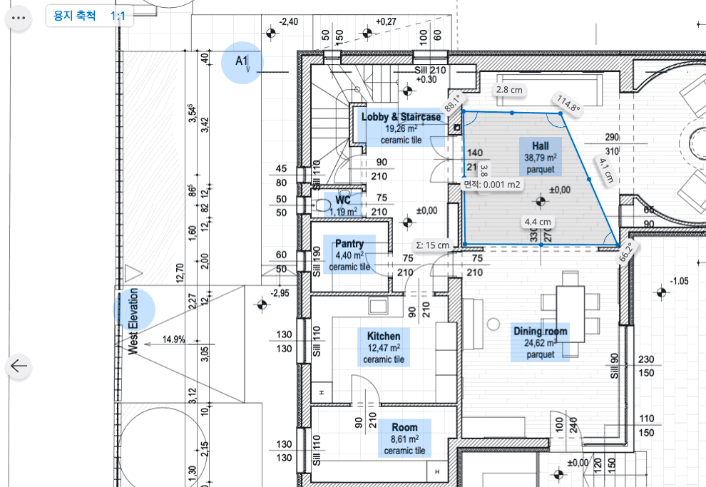
2D에서 측정 도구 사용
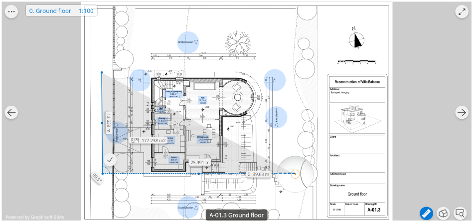
BIMx 하이퍼 모델에 있는 2D 레이아웃을 엽니다.

측정 도구 아이콘을 누르면 돋보기 포인터가 나타납니다
측정을 시작하려는 지점으로 이동하여 클릭하기만 하면 됩니다. 반복합니다. 문자열을 마치려면 Esc를 클릭하거나 마우스 오른쪽 버튼을 클릭하거나 체크 표시를 클릭합니다.

터치스크린이 있는 장치로 작업하는 경우 포인터를 사용합니다. 첫 번째 지점에 도달하면 포인터에서 손을 뗀 다음 두 번째 지점으로 드래그하는 방식으로 진행합니다.
한쪽 벽의 길이만 측정하거나 폐쇄된 면적을 측정할 수 있습니다. 이 도구는 세 개의 포인트를 배치하는 즉시 측정된 면적을 제공할 수 있습니다. 주어진 측정값:
- 길이
- 각도
- 면적
또한 이 도구는 항상 각 포인트 사이의 거리를 서로 더하여 선택한 포인트의 '총 길이'를 실시간으로 알려줍니다.

왼쪽 상단 모서리에 있는 라벨을 클릭하여 눈금을 조정할 수 있습니다.

'스냅 포인트' 중 하나를 클릭합니다. 클릭하면 돋보기 포인터가 표시되고 선택한 면적의 형상을 업데이트할 수 있습니다. 이 특정 포인트를 삭제하려는 경우 해당 포인트를 클릭하면 포인트 옆에 '삭제'가 표시됩니다. 탭하는 포인트가 측정선의 끝에 있는 경우 '삭제' 및 '포인트 추가' 두 가지 옵션이 표시되므로 새 포인트로 측정선을 확장할 수 있습니다.

측정 도구 아이콘을 클릭하면 측정이 비활성화됩니다.
3D에서 측정 도구 사용
BIMx 하이퍼 모델에 있는 3D 모델을 엽니다. 측정 도구는 2D에서와 거의 동일하게 작동하지만 다음과 같은 차이점이 있습니다.
- 이 도구는 항상 각 포인트 사이의 거리를 더하여 선택한 포인트의 '총 길이'를 실시간으로 표시합니다.
- 3D 측정 도구는 스마트 가이드를 제공하여 정밀한 측정이 가능합니다. 수직 가이드라인은 올바를 수직 또는 수평 측정에 도움이 됩니다. 주황색 원은 수직과 수평 표면 사이를 넘나들며 올바른 측정 지점을 선택하는 데 도움을 줍니다.


단위 변경
미터법과 영국식 단위로 변환하려면 설정을 열고 목록에서 단위를 선택합니다.

레이아웃에서 축척 간 전환
- 첫 번째 측정 포인트을 배치합니다.
- 도면 이름은 상단 모서리 중 하나에 표시됩니다. 도면 이름을 클릭하면 레이아웃에 축척 & 도면 목록이 표시됩니다.
- 적절한 축척을 선택합니다.
