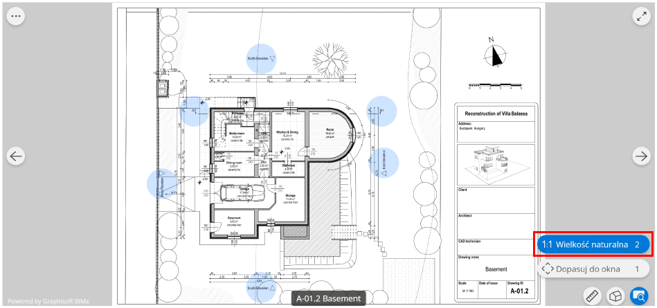
Wielkość naturalna
Wyświetlanie rzeczywistej skali/rozmiaru dokumentu 2D
W dokumencie 2D:
- Kliknij menu podręczne widoku (w prawym dolnym rogu ekranu).
- Z wyświetlonych poleceń kliknij ikonę 1:1 (Wielkość naturalna) lub naciśnij przycisk 2, aby powiększyć widok 2D do skali 100%.
