Medição inteligente
Faça medições precisas nas vistas em 2D e em 3D
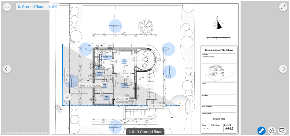
Usando a ferramenta de Medição em 2D
Abra qualquer leiaute 2D que você tenha em seu Hipermodelo BIMx.

Ao pressionar o ícone da ferramenta de Medição apontador da lupa aparecerá
Basta ir até o ponto a partir do qual deseja iniciar a medição e clicar. Repita. Você pode finalizar a cadeia de pontos clicando em Esc, clicando com o botão direito do mouse ou clicando na marca de seleção.

Use o apontador se estiver trabalhando com um dispositivo com tela sensível ao toque. Inicie com o primeiro ponto, solte o apontador e arraste-o para o segundo ponto e assim por diante.
Talvez você queira apenas medir o comprimento de uma parede ou medir uma área de um ambiente. Para medir a área a ferramenta precisa que, pelo menos, três pontos sejam definidos (em um plano). Medidas fornecidas pela ferramenta:
- Comprimento
- Ângulo
- Área
Além disso, a ferramenta sempre fornecerá o "Comprimento total" (perímetro da área), em tempo real, dos pontos selecionados, por meio da soma das distâncias entre cada ponto.

Você poderá ajustar a escala clicando no rótulo no canto superior esquerdo.

Clique em um dos "pontos de vínculo". Uma vez clicado, o apontador da lupa será exibido e você poderá atualizar a forma da área selecionada. Se você deseja apagar este ponto específico, clique nele e a opção "Apagar" será exibida ao lado do ponto. Se o ponto que você está tocando estiver no final da linha de medição, você terá duas opções: "Apagar" e "Adicionar ponto", para que você possa continuar com a medição adicionando novo(s) ponto(s).

Ao clicar no ícone da ferramenta de Medição, a medição será desativada.
Usando a ferramenta de Medição em 3D
Abra qualquer modelo 3D que você tenha em seu Hiper-modelo BIMx. A ferramenta Medir funciona quase da mesma forma que em 2D, mas com as seguintes diferenças:
- A ferramenta sempre fornecerá um "Comprimento total" em tempo real dos pontos selecionados, adicionando a distância entre cada ponto entre si.
- A ferramenta de Medição em 3D fornece guias inteligentes que permitem fazer medições precisas. As linhas guias perpendiculares o ajudam a obter medições verticais ou horizontais retas. O círculo laranja alterna entre superfícies verticais e horizontais para ajudá-lo a escolher o ponto de medição correto.


Alterando as Unidades de Medidas
Se você deseja alternar as unidades de medida entre métricas e imperiais, abra as definições e escolha uma unidade de medida na lista:

Alternando entre escalas em leiautes
- Clique no primeiro ponto da medição
- O nome do desenho aparecerá em um dos cantos superiores. Clique no nome do desenho para exibir a lista de escalas e desenhos no leiaute.
- Selecione a escala apropriada
