Интерактивные выноски элементов на макетах
Щелкните на выноске, чтобы получить доступ к данным BIM-элемента из макета
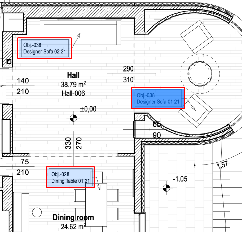
Эта функция доступна в Гипермоделях BIMx, сохраненных в Archicad 27 или более поздней версии.
На макете в BIMx достаточно щелкнуть на выноске (выделяемой синим прямоугольником), чтобы увидеть информацию об элементе. (Интерактивные прямоугольники появляются на элементах 3D-модели, имеющих выноски)


Щелкните на значке здания, чтобы открыть 3D-модель и приблизить элемент.
Включение/отключение показа Выносок
Для включения или выключения интерактивных Выносок:
- Откройте меню в левой верхней части экрана.
- Нажмите кнопку Параметров.
- Воспользуйтесь переключателем Выносок для управления их отображением.

Для получения дополнительной информации, см. .