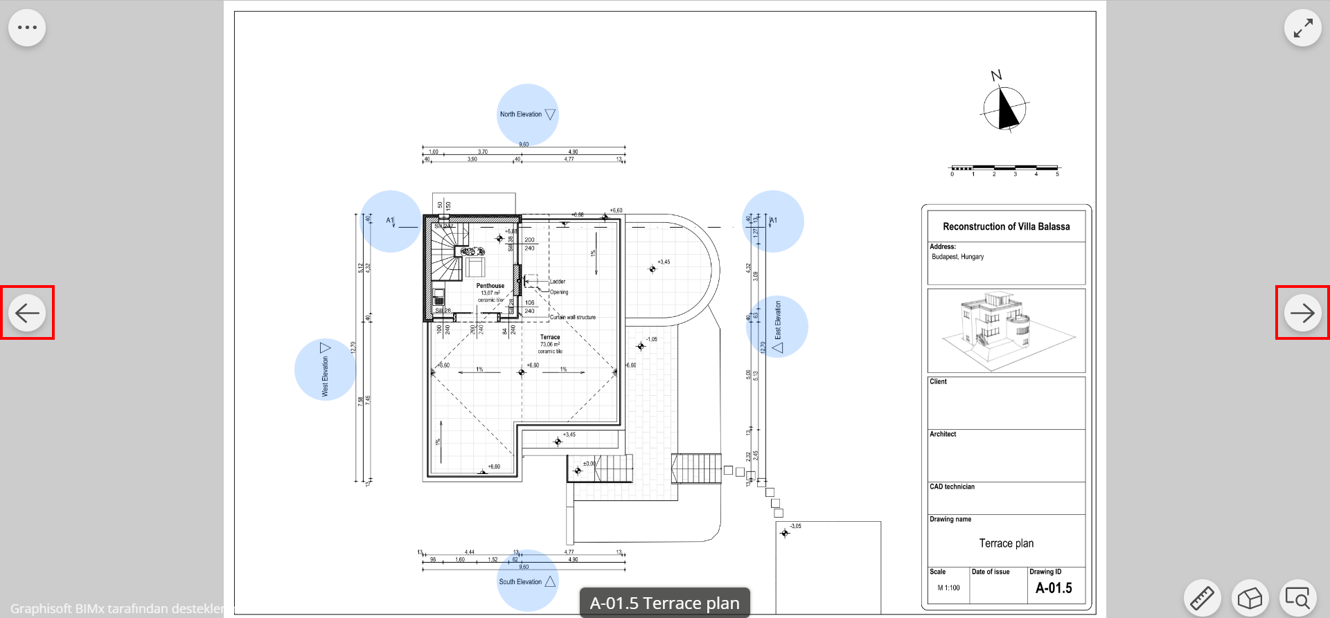
2D'de Gezinme
2D belgede gezinmek için bu komutları kullanın
Kaydırma
Sol fare düğmesi + Sürükle
Tek parmakla kaydırma (dokunmatik ekranda)
Dokunmatik yüzeyde kaydırma: sağ düğmeye tıklayın ve basılı tutun, ardından sürükleyin
Zoom
Aşağıdakilerden birini yapın:
- Mouse tekerleği ile kaydır
- Çift tıklayın
- Çimdikleme (dokunmatik ekranda)
Sonraki/önceki 2D belgeyi aç
- Sol/sağ ok butonları veya klavye ok tuşları
- Dokumatik ekranda kaydır
Görünümler İndekste listelendiği sırada açılırlar.
