Akıllı Ölçüm
2D ve 3D görünümlerde hassas ölçümler yapın
2D'de Ölçüm aracını kullanma
BIMx Hiper-modelinizde sahip olduğunuz herhangi bir 2D düzeni açın.

Ölçüm aracı simgesine basıldığında büyüteç imleci görüntülenir
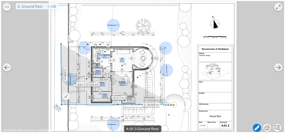
Ölçmeye başlamak istediğiniz noktanın üzerine gidin ve tıklayın. Tekrarla. Esc tuşuna tıklayarak, sağ tıklayarak veya onay işaretine tıklayarak dizeyi bitirebilirsiniz.

Dokunmatik ekranlı bir cihazla çalışıyorsanız işaretçiyi kullanın. İlk noktaya geldiğinizde işaretçiyi bırakın ve ardından ikinci noktaya sürükleyin ve bu şekilde devam edin.
Sadece bir duvarın uzunluğunu veya kapalı bir alanı ölçmek isteyebilirsiniz. Araç, üç nokta yerleştirilir yerleştirilmez size bir alan verebilecektir. Verilen ölçüler:
- Uzunluk
- Açı
- Alan
Ayrıca, araç size her zaman seçtiğiniz noktaların gerçek zamanlı "Toplam uzunluk" değerini verecek ve her nokta arasındaki mesafeyi birbirine ekleyecektir.

Sol üst köşedeki etikete tıklayarak ölçeği ayarlayabilirsiniz.

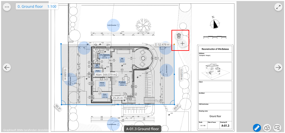
"Yakalama noktaları"ndan birine tıklayın. Tıklandığında, büyüteç imleci görüntülenecek ve seçilen alanın şeklini güncelleyebileceksiniz. Bu belirli noktayı silmek istiyorsanız, üzerine tıklayın ve noktanın yanında "Sil" görüntülenecektir. Dokunduğunuz nokta ölçüm çizgisinin sonundaysa, ölçümü yeni bir noktayla genişletebilmeniz için "Sil" ve "Nokta ekle" seçeneklerine sahip olursunuz.

Ölçüm aracı simgesine tıklandığında ölçüm devre dışı bırakılır.
3D'de Ölçüm aracını kullanma
BIMx Hiper-modelinizde bulunan herhangi bir 3D modeli açın. Ölçü aracı 2D ile hemen hemen aynı şekilde çalışır, ancak aşağıdaki farklılıklar vardır:
- Araç, her bir nokta arasındaki mesafeyi birbirine ekleyerek size her zaman seçtiğiniz noktaların gerçek zamanlı "Toplam uzunluğunu" verecektir.
- 3D'deki ölçüm aracı, hassas ölçümler yapmanızı sağlayan akıllı kılavuzlar sunar. Dikey kılavuzlar, düz dikey veya yatay ölçümler almanıza yardımcı olur. Turuncu daire, doğru ölçüm noktasını seçmenize yardımcı olmak için dikey ve yatay yüzeyler arasında geçiş yapar.


Birimlerin Değiştirilmesi
Birimleri Metrik ve Emperyal arasında değiştirmek isterseniz, Ayarlar'ı açın ve listeden bir birim seçin:

Paftalardaki Ölçekler Arasında Geçiş Yapma
- İlk ölçüm noktasını yerleştirin
- Çizim adı üst köşelerden birinde görünür. Paftadaki ölçeklerin ve çizimlerin listesini görüntülemek için çizim adına tıklayın.
- Uygun ölçeği seçin
