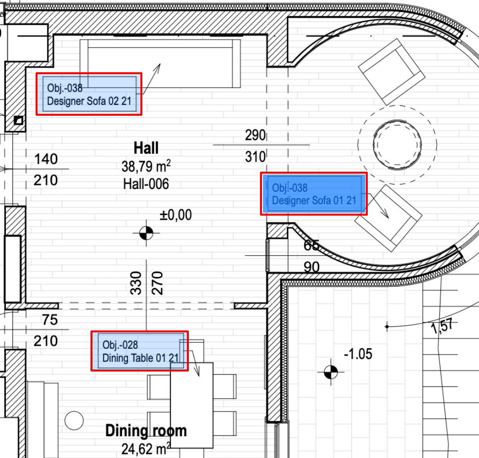
佈局上的交互式元素標籤
點擊標籤可從佈局中訪問 BIM 元素訊息
可在 Archicad 27 或更高版本發佈的 BIMx 超級模型中使用。
在 BIMx 的佈局中,只需點擊標籤(以藍色矩形突出顯示),即可查看該元素的相關訊息。(交互式矩形出現在有標籤的 3D 模型元素上)。


點擊圖標瀏覽,開啟 3D 模型並縮放至元素。
標記顯示開/關
開啟或關閉交互式標籤:
- 從螢幕的左上角開啟選單
- 點擊設定按鈕。
- 切換 區域使其可見或關閉。

更多訊息,參見。